YI LING®
杭州萧山电磁阀门厂
首页
Home
关于益灵
Nav
技术中心
Nav
产品展示
Nav
阀门配件
Nav
服务中心
Nav
联系我们
Nav
企业简介
生产基地
阀体、介质密封材料选型表
流量计算方式、密封件综述
电磁阀的安装与使用
电磁阀的故障与排除
电磁阀选型
电磁阀结构原理
截止阀故障排除
放料阀维护保养和安装使用事项
放料阀故障排除
气动浆液阀产品故障与维修方法
调节阀安装说明
调节阀使用和维修
蝶阀故障原因与排除办法
低温电磁阀
水景喷泉电磁阀
排水阀
真空电磁阀
信号反馈电磁阀
低功耗电磁阀
双稳态自保持电磁阀
三通电磁阀
微型电磁阀
煤气电磁阀
防爆电磁阀
高压电磁阀
蒸汽高温电磁阀
防腐和耐酸碱度电磁阀
水液气用电磁阀
消防电磁阀
电磁阀
咖啡机、电熨斗专用电磁阀
饮水机用电磁阀
小家电智能电磁阀
截止阀
灌溉阀
放料阀
闸阀
调节阀
球阀
蝶阀
分享
在线客服
客服一
客服一
J941H/W系列 电动法兰式截止阀
结构特点:J941H/W 型电动法兰式截止阀采用多回转阀门电动装置,使阀芯作上下直线运动,采用 380V 电源,以 220V 为控制线, 实现远程控制阀门的打开或关闭。(开关型截止阀)可分为普通型与防爆型。
产品用途:本系列阀门是实现工业管道自动化控制的主要元件,广泛应用于石油、化工、制药、化肥、电力等行业的自动化管路上, 特别适用于氢气、二氧化碳、氧气、重整气、催化裂化干气、变换气等变压吸附分离的工程管路上作启闭程控元件。
0571-82585458
立即预约
产品介绍
标准规范
技术参数表
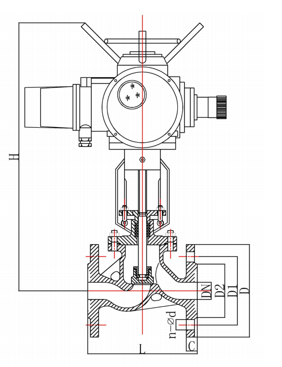
外型尺寸图
J941H/W
型电动法兰式截止阀采用多回转阀门电动装置,使阀芯作上下直线运动,采用
380V
电源,以
220V
为控制线,
实现远程控制阀门的打开或关闭。(开关型截止阀)可分为普通型与防爆型。
1、结构
①阀座密封面堆焊不锈钢铜或硬质合金,经精加工,耐磨、耐腐蚀、耐高温。
②阀瓣密封圈为四氟或其它合成材料,密封性好,易更换维修。
2、特点
①可以实现远程控制,集中控制和自动控制。
②密封性能可靠,易更换维修。
③可根据不同的使用条件,选配不同内径及行程的电动执行机构,适用范围广。
设计与制造
GB/T12235
连接尺寸
结构长度
GB/T12221
法兰尺寸
GB/T9115
焊端尺寸
GB/T12224
检验与试验
JB/T9092 GB/T13927
碳钢
GB/T12229
不锈钢
GB/T12230
合金钢
JB/T5263
标志
GB/T12220
供货
JB/T7928
公称通径(
mm
)
50
-
300
公称压力(
MPa
)
1.0
-
1.6
工作压差(
MPa
)
0
-
1.6
适用介质
水、蒸汽、油品、气体
介质温度(℃)
-
29
-
180
工作方式
直动(一次开阀)
驱动方式
气动、液动、电动
阀体材质
WCB CF8
公称通径
结构长度
连接尺寸
DN
L
H
D
D1
D2
C
n-d
50
230
510
165
125
99
20
4-18
65
290
590
185
145
118
20
4-18
80
310
648
200
160
135
20
8-18
100
350
700
220
180
156
22
8-18
125
400
793
250
210
184
22
8-18
150
480
845
285
240
211
24
8-22
200
600
887
340
295
266
24
12-22
250
650
945
405
355
319
26
12-26
300
750
1040
460
410
370
28
16-26
350
850
1200
520
470
429
30
16-26
400
950
1320
580
525
480
32
16-30
450
1050
1440
640
585
548
40
20-30
500
1150
1580
715
650
609
44
20-33
地址 : 杭州市萧山区瓜沥镇 联系电话 : 0571-82585449 / 82585458 邮箱:yiling-cn@outlook.com
手机:13429690611/13906711902 传真:0571-82585449 keywords:
杭州电磁阀
杭州阀门