YI LING®
杭州萧山电磁阀门厂

J661H/Y系列 气动焊接式截止阀

J661H/Y系列 气动焊接式截止阀

产品用途:J661H、J661Y 型焊接式高压气动截止阀,适用于公称压力PN200~PN320 及P54/100V-P57/170V,工作温度≤540℃(其中P57/170V工作温度为570℃)的石油、化工 、水力 、火力电站各种系统的管路中,切断或接通管路介质。
产品介绍
标准规范
技术参数表
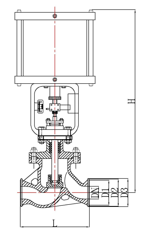
外型尺寸图

一、产品特点

1、阀门中腔采用压力自紧式密封结构,密封性能越好。支管两端为焊接结构。焊接坡口可按标准或用户要求配接
2、阀瓣、阀座的密封面采用司太立钴基硬质合金堆焊而成,耐磨、耐高温,抗擦伤性能好、使用寿命长
3、阀杆经调质和表面氮化处理,有良好的搞腐蚀性和抗擦伤性。
4、阀盖填料函深度合理,填料加缓蚀剂,密封可靠。


二、执行标准

1、制造验收技术条件按JB/T3595或E101的规定。
2、阀门结构长度按ANSI B16.10或E101的规定。
3、阀体焊接坡口按ANSI B16.25的规定或按用户提供的尺寸。


型号J661H-200V
工作压力(MPa)19.615.586.96
适用温度(℃)≤200≤450≤570
适用介质水、蒸汽等
材料阀体、阀盖铬钼钒钢
阀瓣铬钼钒钢+堆焊硬质合金
阀座铬钼钒钢+堆焊硬质合金
阀杆铬钼钒钢
  • 主要性能和使用范围

    产品型号公称压力 PN(MPa)试验压力 (MPa)工作压力 (MPa)工作温度 (℃)适用介质
    壳体强度密封P54P55P57
    J661H/Y-100101511///≤425水、蒸汽、油品
    J661H/Y-200203022///
    J661H/Y-250253828///
    J661H/Y-320324836///
    J661Y—P54/100V20302210//≤540蒸汽
    J661Y—P54/140V25382814//
    J661Y—P54/170V32483617//
    J661Y—P55/100V253828/10/≤550
    J661Y—P55/140V324836/14/
    J661Y—P55/170V/5339/17/
    J661Y-P57/100V/4836//10≤570
    J661Y—P57/140V/5540//14
    J661Y—P57/170V/6044//17


  • 主要零件材料

    零件名称阀体阀盖阀杆阀瓣密封面填料阀杆螺母紧固件
    J961H型25 WCB25 WCB铬不锈钢铬 钼铝钢氮化铬不锈钢铬不锈钢柔性石墨铝青铜优质碳钢 铬钼钢
    J661Y型25 WCB25 WCB铬不锈钢铬 钼铝钢氮化25硬质合金
    J661Y-P54型12Cr1MoV WC612Cr1MoV WC620Cr1Mo1VA 38Cr1MoAIA12Cr1MoV硬质合金
    J661Y-P55型12Cr1MoV WC612Cr1MoV WC620Cr1Mo1VA 38Cr1MoA1A12Cr1MoV硬质合金
    J661Y-P57型12Cr1MoV WC912Cr1MoV WC920Cr1Mo1VA 38Cr1MoAIA12Cr1MoV硬质合金






ABUIABAEGAAg37ShqgYouqj0-AMw7gM4ogY
公称通径 DN(mm)连接尺寸 (mm)
LD1D2D3H
151501736/518
201702242/518
251702642/518
321803144/560
402303860/545
50(1)2505082/728
50(2)3205082/748
6537069100110829
8047084108130898
100560107144165913
J661Y-P55/100V、P55/140V、P55/170V J661Y-P57/100V、P57/140V、P57/170V
151501740/518
201702246/518
251702646/518
321803149/560
402303860/545
50(1)2505090/728
50(2)3205090/748
6537069104115829
8047084110140898
100560107148170913





地址 : 杭州市萧山区瓜沥镇                                          联系电话 : 0571-82585449 / 82585458                                                   邮箱:yiling-cn@outlook.com
手机:13429690611/13906711902                                                传真:0571-82585449                 keywords:杭州电磁阀 杭州阀门