YI LING®
杭州萧山电磁阀门厂

ZZYP系列 自力式压力调节阀

ZZYP系列 自力式压力调节阀

产品用途:广泛应用于石油、化工、电力、冶金、食品、轻纺、机械制造与居民建筑楼群等各种工业设备中用气体、液体及蒸汽介质减压、稳压(用于阀后调节),或泄压、稳压(用于阀前调节)的自动控制。
产品介绍
技术参数表
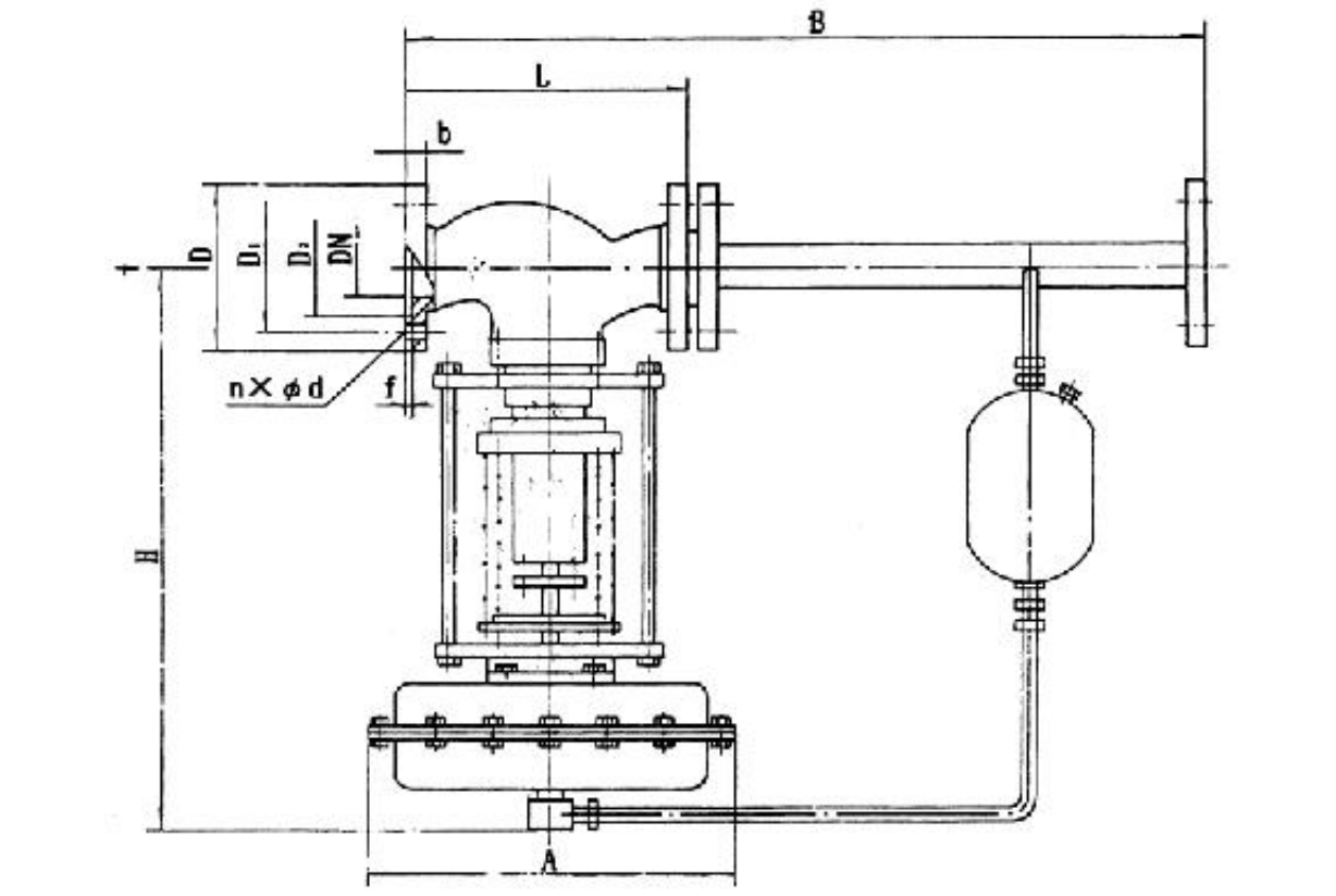
外型尺寸图
订货须知

一、用途与特点

ZZYP 型自力式压力调节阀是不需要任何外加能源,利用被调介质自身能量而实现自动调节的执行器产品。该产品最大

特点,能在无电、无气的场所工作,同时又节约了能源,压力设定值在运行中可随意调整。采用快开流量特征,动作灵敏、

密封性能好,因而它广泛应用于石油、化工、电力、冶金、食品、轻纺、机械制造与居民建筑楼群等各种工业设备中用气体、

液体及蒸汽介质减压、稳压(用于阀后调节),或泄压、稳压(用于阀前调节)的自 动控制。


二、结构与作用原理

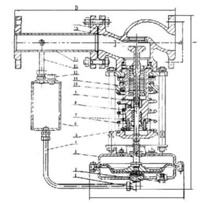
调压阀主要有检测执行机构、调压阀、冷凝器与阀后接管等腰三角形四部分组成,其结构(见图一)。

图一 a、用于控制阀后压力的调压阀,阀的作用方式为压闭型。其原理如下:介质由箭头方向流入阀体、经阀芯、阀座

节流后输出。另一路经冷凝器(介质为蒸汽时使用)冷却后,被引入执行机构作用于膜片上,使阀芯随之发生相应的位移,

达到减压、稳压之目的。如阀后压力增加,作用于膜片上的力增加,压缩弹簧,带动阀芯,使阀门开启度减小,直至阀后压

力下降到设定值为止。同理,如阀后压力降低,作用在膜片上的力减小,于弹簧的反作用力,带动阀芯,使阀门开启度增大,

直到阀后压力上升到设定值为止。


WechatIMG657.jpg

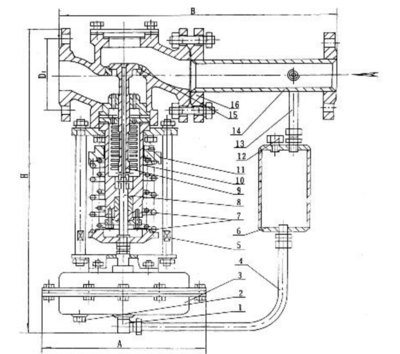
图一 b:用于控制阀前压力的调压阀,阀的作用方式为压开型。其原理如下:介质由箭头方向流入阀体,另一路经冷凝器(介质为蒸汽时使用)冷却后,被引入执行机构作用于膜片上,使阀芯随之发生相应的位移,达到泄压、稳压之目的。如阀前压力增加,作用于膜片上的力增加,压缩弹簧,带动调芯,使阀门开启度增大,直到阀前压力下降到设定值为止。同理,如阀门开启度减小,直到阀前压力上升到设定值为止。


WechatIMG658.jpg



公称通径DN(mm)20253240506580100125150200250300
额定流量系数(KV)7112030487512019030048076011001750
额定行程(mm)81014202540506070
公称压力PN(MPa)1.6、4.0、6.4
压力调节范围(Kpa)15~50 40~80 60~100 80~140   120~180 160~220
200~260 240~300 280~350 330~400 380~450 430~500
480~560 540~620 600~700 680~800 780~900 880~1000
600~1500 1000~2500
流量特性快开
调节精度(%)±5
使用温度(℃≤350
允许泄
漏量
硬密封(l/h)单座:≤10-4 阀额定容量(IV级);双座、套筒≤5×10-3 阀额定容量(II级)
软密封(ml/h)0.150.300.450.600.901.74.06.7511.1011.60
减压比最大10
最小1.25


压力调节范围确定:压力调节范围分段,见主要参数及性能指标表,控制压力应尽量选取在调节范围的中间值附近(见表一)

阀后压力调节阀,其阀前压力与阀后压力的关系:自力式调节阀本身是一个调节系统,阀本身又有一定的压降要求,对阀后压力调节阀(B型),为保证阀后压力在一定范围内,其阀前压力必须达到一定值,其要求可参见表二


阀前压力
Kpa
3050100150200250300350400450500550600
阀后压力
KPa
15~
24
15~
40
15~
80
15~
120
20~
160
25~
200
30~
240
35~
280
40~
320
45~
360
50~
400
55~
440
60~
480



阀前压力
Kpa
650700750800850900950100012501500200025003000
阀后压力
KPa
65~
520
170~
560
75~
600
80~
640
85~
680
90~
720
95~
760
100~
800
125~
1000
150~
1200
200~
1600
250~
2000
300~
2400





ABUIABAEGAAg6KSjqgYo0eWUvQQwzAk4uAY
公称通径DN202532405065 80100125150200250300
法兰接管尺寸B38351260386210231380180020002200
法兰端面距L150160180200230290     310350400480600730850
压力
调节
范围
KPa
15-140H4755205407107808408809159401000
A280308
130-300H455500520690760800870880900950
A230
280-500H450490510680750790860870890940
A176194280
480-1000H445480670740780850860880930
A176194280
600-1500H445570600820890950100011001200
A8596
1000-2500H445570600820890950100011001200
A8596
重量Kg26374272     90114130144180200250
导压管接头螺纹M16×1.5



主要零件材料
零件名称材料
阀   体ZG230-450 ZG1Cr18Ni9Ti ZGCr18Ni 12Mo2Ti
阀   芯1Cr18Ni9Ti Cr18Ni 12Mo2Ti
阀   座1Cr18Ni9Ti Cr18Ni 12Mo2Ti
阀   杆1Cr18Ni9Ti Cr18Ni 12Mo2Ti
橡胶膜片丁晴、乙炳、氟、耐油橡胶
膜   盖A3 A4 钢涂四氟乙烯
填   料聚四氟乙烯、柔性石墨







订货时请用户提供以下资料:
型号
名称
公称通径
公称压力
信号范围
作用方式
介质参数
介质工作温度
额定流量系数
固有流量特性
阀前最大压力
阀前最小压力
阀前正常压力

阀后最大压力
阀后最小压力
阀后正常压力

最大流量
最小流量
正常流量

液体粘度
液体重度
气体重度

材质:阀芯
       阀体
       内阀件
       填料

附件
工艺管道尺寸
耐蚀等特殊要求
自力式调压范围
      调温范围
      压差调节范围
      微压调节范围




地址 : 杭州市萧山区瓜沥镇                                          联系电话 : 0571-82585449 / 82585458                                                   邮箱:yiling-cn@outlook.com
手机:13429690611/13906711902                                                传真:0571-82585449                 keywords:杭州电磁阀 杭州阀门